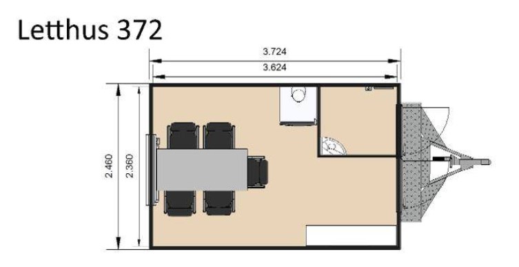
Spisebrakke / Mannskapsbrakke m/toalett

Praktisk og komfortabel mannskapsbrakke for utleie – perfekt for byggeplass, anlegg, arrangement eller midlertidige arbeidsplasser.


Brakken er tilpasset opptil 5 personer og har det du trenger for en god arbeidsdag:


✅ Plass til 5 personer

✅ Kjøleskap

✅ Oppvarming / varmeovn

✅ Eget toalett med tett tank

✅ Håndvask

✅ Mobil løsning – enkel å plassere der du trenger den


Perfekt for entreprenører, håndverkere, kommunale oppdrag eller arrangementer der det er behov for gode fasiliteter ute i felt.


Velg en variant:

fra kr 800,00